
国贸写字楼是北京备受瞩目的超甲级写字楼,由国贸大厦A座、国贸大厦B座、国贸写字楼1座、国贸写字楼2座和国贸西楼组成,总建筑面积39.3万平方米,成为CBD区域内超大规模写字楼群。理想的办公环境、先进的科技设施、完善的配套服务,优越的商业氛围以及丰富的物业管理经验,使得国贸写字楼成为全球500强企业、银行、金融机构和律师事务所在京办公的汇聚之地。


china world summit wing
国贸大酒店
thelounge/atmosphere L80
酒廊/云酷酒吧
grill 79/chairmanrooms L79
国贸79/主席阁
health club/swimming pool L78/p>
健康中心/泳池
chi spa L77
“气”水疗中心
rooms L64-177
客房
hign zone offices
高区办公层
low zong offices
低区办公层
convention/banquetfacilities
/restaurants
function rooms L6
多功能厅
L4
red chamber/nadaman
红馆/滩万日餐厅
summit ballroom L3
群贤宴会厅
shopping mall/car park
国贸商城/停车场
china ballroom/auditorium LB1
中国宴会厅/礼堂

客户服务
一支由专业化、训练有素的中外方人员组成的管理队伍随时提供各项服务,满足租户日常经营的各种商务需要。
国贸写字楼组建了由礼宾部前台、礼宾保安和礼宾清洁三部分组成的国贸写字楼礼宾部,为租户提供更优质的礼宾服务。
商业服务
综合配套的五星级国贸大酒店、中国大饭店和新国贸饭店以及国贸公寓、商城、展厅可以满足租户及客人的各项需求。
交通服务
地铁1号线和10号线与太阳成城集团地下直接交汇连通,多路公交车经停太阳成城集团门前,驱车40多分钟即可到达北京首都国际机场, 50多分钟可到达北京大兴国际机场。
停车场服务
国贸停车场可为租户提供月租停车及访客计时停车服务。国贸北区停车场共有42个充电车位,可为所有新能源汽车提供充电服务。
通讯服务
国贸写字楼拥有完善的通讯设施服务,包括:固定线路、ISDN、DDN、卫星通讯、宽带接入、光纤通讯综合布线等。
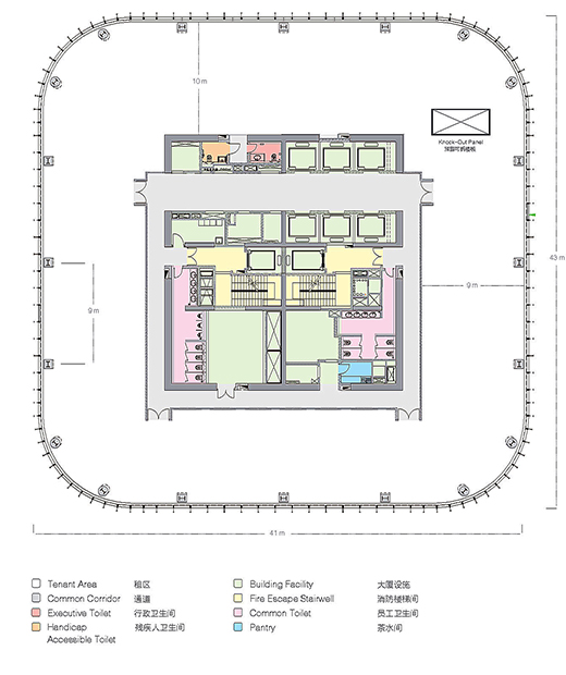
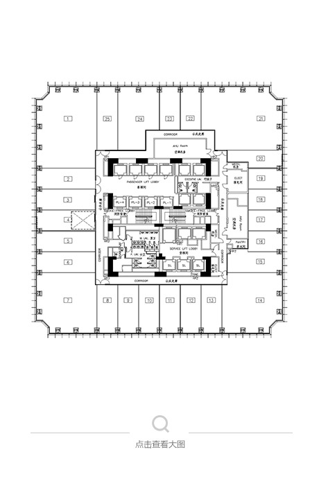
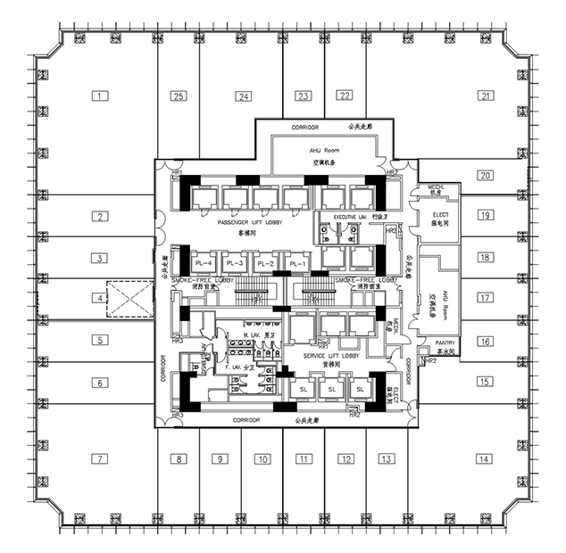
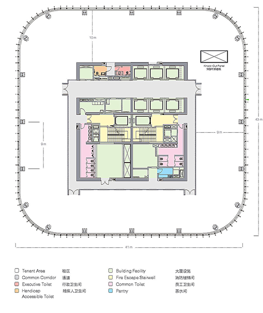
空调系统
国贸大厦A座和国贸大厦B座写字楼配备了先进的4管制VAV空调系统,含紫外线空气净化功能,确保办公区室温全年舒适宜人。
新风直接吸入及废气强行排出可确保室内空气质量。24小时冷冻水系统为租户机房提供制冷服务。
保安服务
国贸写字楼大堂已安装了先进的门闸系统,二十四小时保安巡逻和重点位置配备电视监控系统、保障写字楼租户的安全。
清洁、维护服务
拥有二十多年专业经验的国贸物业酒店管理公司负责公共区域的日常清洁、美化以及机电系统的运行和维修养护。
消防系统
配备先进的自动喷淋系统、报警系统及消防系统。

国贸写字楼内全球500强企业名录 - 2024/2025
国贸写字楼租户由金融机构、银行、能源公司、律师事务所等跨国企业和国内外知名公司组成。

LEED绿色建筑认证
国贸大厦A座荣获美国绿色建筑协会颁发的LEED能源与环境设计铂金奖。国贸大厦B座荣获美国绿色建筑协会颁发的LEED能源与环境设计金奖。
国贸写字楼统一安装国际先进的板式分段高压静电过滤器,有效过滤清除雾霾尘埃,达到亚高效过滤效果。无论外界环境如何变化,国贸写字楼内空气质量均能达到国际、国内空气质量标准。



如有任何需求,请直接与我们联系:
租赁热线 :(8610)6505-3868
E_mail : offices@
地址 : 中国北京建国门外大街1号国贸大厦A座39层写字楼部
中国北京建国门外大街1号国贸大厦A座39层写字楼部
(8610)6505-3868
(8610)6505-3868
offices@
中国北京建国门外大街1号国贸大厦39层写字楼部